Moderne Eigentumswohnung in Alfter-Witterschlick, naturnah & stadtnah

53347 Alfter

  • Kaufpreis 399000 €
  • Courtage Provisionsfrei für den Käufer
  • Energiebedarf 11 kWh pro m² pro Jahr
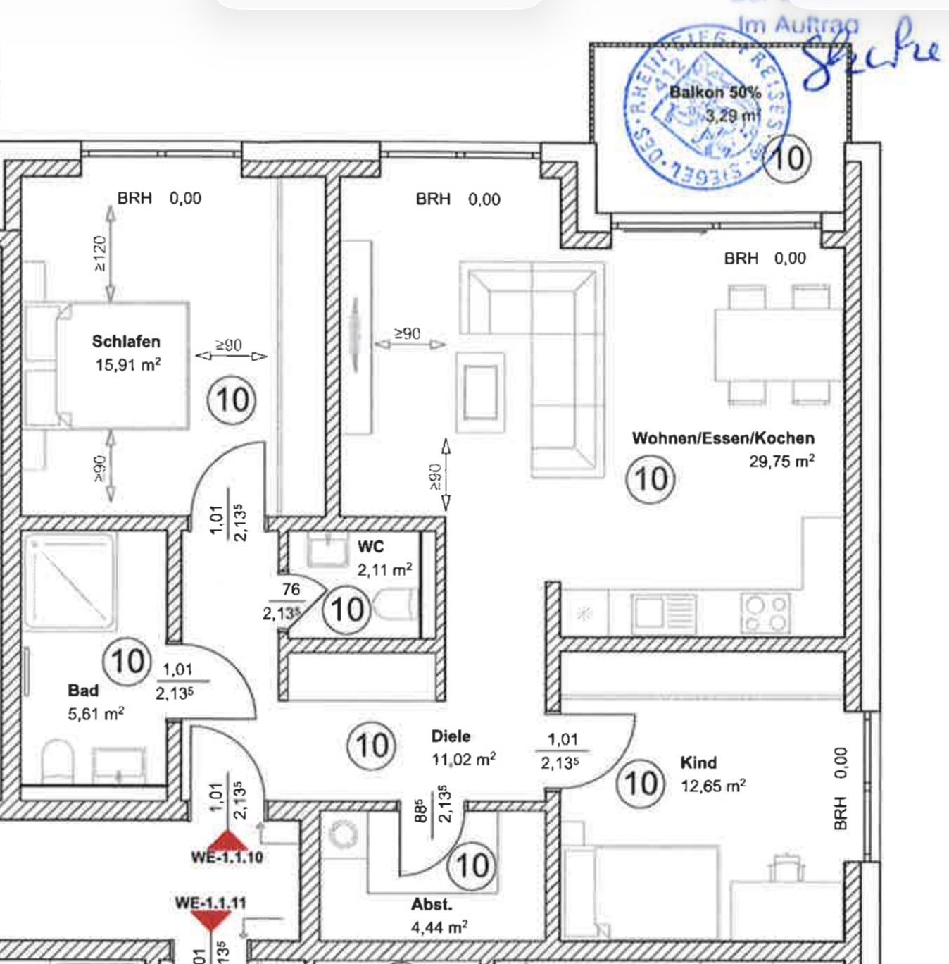
  • Wohnfläche m² 84
  • Zimmer 3
  • Anzahl Badezimmer 1
  • Heizungsart Fußbodenheizung
  • Stellplatz Tiefgaragen-Stellplatz
  • Keller voll unterkellert
  • Befeuerung Luftwärmepumpe
  • Bad Dusche

Objektbeschreibung

Ihr neues Zuhause: Effiziente Eigentumswohnungen in idyllischer Lage bei Bonn.

Moderne Eigentumswohnung in Alfter-Witterschlick – KfW-Effizienzhaus 40 mit einem hohen Anteil erneuerbarer Energien.

In idyllischer Lage von Alfter-Witterschlick, nur wenige Minuten von Bonn entfernt, steht Ihr neues Zuhause: eine moderne Eigentumswohnung, die höchsten Ansprüchen an Wohnkomfort und Nachhaltigkeit gerecht wird. Das Baujahr 2024 garantiert nicht nur zeitgemäßes Design, sondern auch eine besonders energieeffiziente Bauweise nach dem Standard KfW-Effizienzhaus 40 EE – eine Investition in die Zukunft.

Auf ca. 84 m² Wohnfläche erwartet Sie ein lichtdurchflutetes Raumkonzept mit 3 Zimmern, das sich ideal für Singles, Paare oder kleine Familien eignet. Große Fensterflächen und die offene Gestaltung sorgen für ein freundliches und einladendes Ambiente. Die große Terrasse erweitert den Wohnraum ins Grüne und bietet viel Platz für entspannte Stunden im Freien.

Ihre Ausstattungs-Highlights im Überblick:

  • KfW-Effizienzhaus 40 EE – nachhaltig, energieeffizient & kostensparend
  • Massivbauweise (Stahlbeton/Mauerwerk) für Langlebigkeit und Wertstabilität
  • Fußbodenheizung mit Einzelraumsteuerung für ein behagliches Klima in allen Räumen
  • Stiebel Eltron Wärmepumpe – moderne Heiztechnik mit Fokus auf Effizienz
  • Kontrollierte Wohnraumlüftung – optimale Luftqualität, besonders für Allergiker
  • Elektrische Rollläden (Aluminiumpanzer) und Isolierverglasung für Sicherheit, Ruhe und Komfort
  • Videogegensprechanlage mit Türöffner sowie hochwertige Haustür mit Sicherheitsschloss
  • Aufzug (Thyssen-Krupp, rollstuhlgeeignet) für barrierefreien Zugang
  • Kellerraum mit Steckdose sowie Fahrradabstellplatz
  • Tiefgaragenstellplatz – sicher & wettergeschützt

Die ruhige Lage von Witterschlick kombiniert ländliche Idylle mit perfekter Anbindung an die Stadt: In wenigen Minuten erreichen Sie Bonn, Geschäfte des täglichen Bedarfs sowie Kindergärten und Schulen. Hier verbinden sich naturnahes Wohnen und urbane Nähe auf ideale Weise.

Vereinbaren Sie noch heute einen Besichtigungstermin und überzeugen Sie sich selbst vor Ort!

Kontakt