Renditestarkes Mehrfamilienhaus mit 21 Einheiten

42107 Wuppertal

  • Kaufpreis 3300000 €
  • Courtage 3,57% vom Kaufpreis (inkl. MwSt.)
  • Grundstück m² 619
  • Wohnfläche m² 1313
  • Zimmer 49
  • Anzahl Badezimmer 22
  • Stellplatz Freiplatz

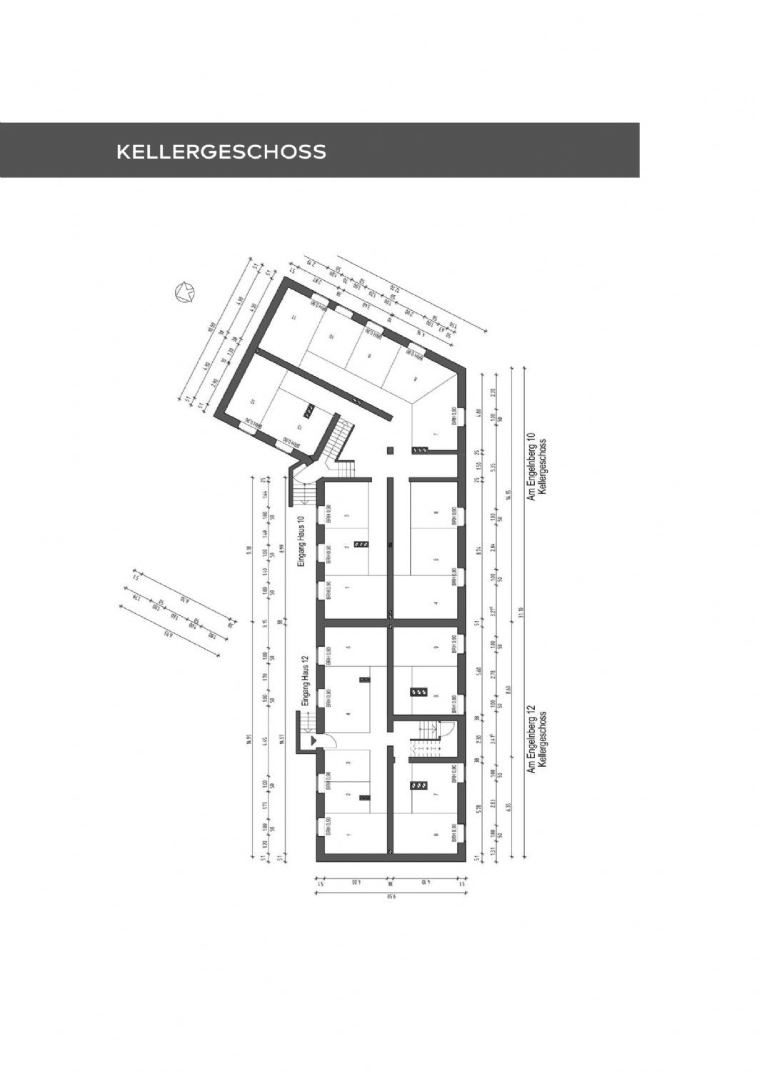
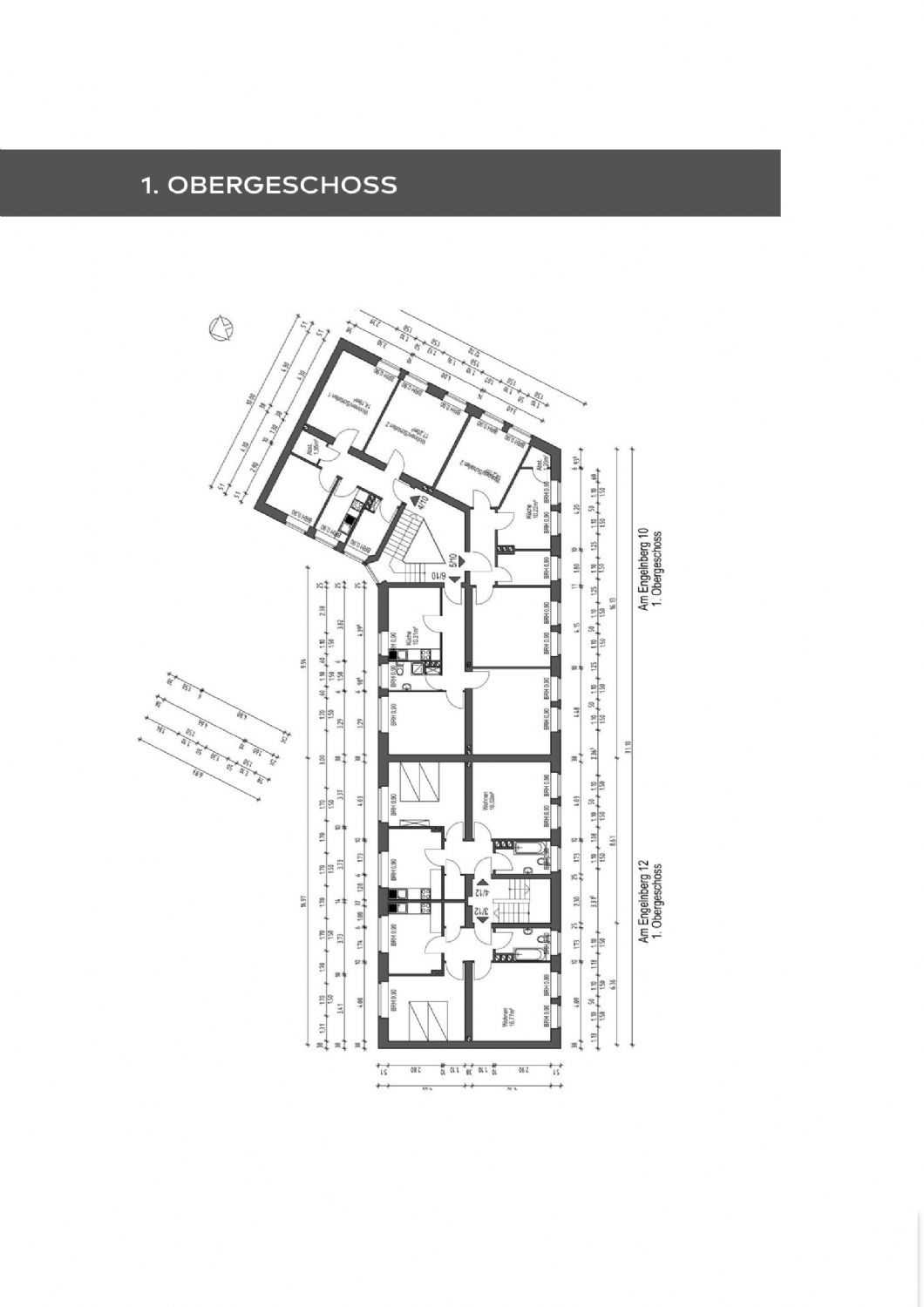
Objektbeschreibung

Kapitalanlage mit Substanz, Cashflow und Entwicklungspotenzial

Dieses gepflegte Mehrfamilienhaus aus dem Jahr 1952 vereint das, was Investoren suchen: solide Bauqualität, stabile Einnahmen und zusätzliche Ertragschancen. Das Objekt wurde laufend modernisiert und präsentiert sich heute in einem sehr guten Gesamtzustand – mit hervorragender Vermietbarkeit und sofortigem Cashflow.

Mit 21 Wohneinheiten, einer Wohnfläche von ca. 1.313 m² und einer aktuellen Monatsmiete von rund 25.430 € bietet diese Immobilie eine Bruttorendite von ca. 9,25 % – und das auf Basis garantierter Durchschnittseinnahmen.
Durch die teilweise Nutzung als Monteurswohnungen werden regelmäßig höhere Erträge erzielt, wodurch sich ein zusätzliches Wert- und Renditepotenzial ergibt.

Diese Immobilie eignet sich ideal für Kapitalanleger, die eine sofort laufende, renditestarke Investition in einem wirtschaftlich stabilen Standort suchen.

Die wichtigsten Investment-Highlights auf einen Blick

  • 21 vermietbare Wohneinheiten
  • Ca. 1.313 m² Gesamtwohnfläche
  • Grundstücksgröße: ca. 619 m²
  • Aktuelle Monatsmiete: ca. 25.430 €
  • Jahresmiete: ca. 305.160 €
  • Bruttorendite: ca. 9,25 %
  • Energieeffizienzklasse B
  • Fortlaufend modernisiert
  • Kombination aus Langzeit- und Monteursvermietung möglich
  • Sofort verfügbar

Eine seltene Gelegenheit für Investoren, die hohe laufende Einnahmen mit weiterem Steigerungspotenzialverbinden möchten. 

Das Objekt ist ab sofort verfügbar und kann kurzfristig übernommen werden. Gerne stellen wir Ihnen weiterführende Unterlagen sowie einen Besichtigungstermin zur Verfügung.

Lage

Die Immobilie liegt in einer ruhigen, zentralen Wohnlage von Wuppertal – einem der wichtigsten Wirtschaftsstandorte im Bergischen Städtedreieck mit hoher Nachfrage nach Wohnraum.

Standortvorteile:

  • Gute Infrastruktur mit kurzen Wegen zu allen Einrichtungen des täglichen Bedarfs
  • Einkaufsmöglichkeiten, Schulen, Ärzte und Gastronomie in unmittelbarer Umgebung
  • Hervorragende ÖPNV-Anbindung
  • Schneller Anschluss an die Autobahnen A46 und A1
  • Zügige Erreichbarkeit von Düsseldorf, Köln und Dortmund

Gerade für Monteurswohnungen und möblierte Vermietung bietet die Lage ideale Voraussetzungen: Die zentrale Position im Ruhrgebiet sowie die Nähe zu Industrie- und Handwerksbetrieben sorgen für eine dauerhaft hohe Auslastung.

Ausstattung

 

  • Jede Wohnung mit Küche und Badezimmer
  • Eigene Kellerabteile für alle Einheiten
  • Energieeffizienzklasse B
  • Mehrere Außenstellplätze
  • Gepflegter Gesamtzustand
  • Laufend instand gehalten und modernisiert

Die energetische Qualität und der gute Zustand sichern eine nachhaltige Vermietbarkeit und reduzieren langfristig die Betriebskosten.

Kontakt