Moderne Eigentumswohnung in Alfter-Witterschlick, naturnah & stadtnah – KfW- Effizienzhaus 40

53347 Alfter

  • Kaufpreis 309000 €
  • Courtage Provisionsfrei für den Käufer
  • Energiebedarf 11 kWh pro m² pro Jahr
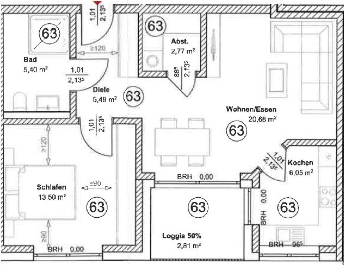
  • Wohnfläche m² 62
  • Zimmer 2
  • Anzahl Badezimmer 1
  • Heizungsart Fußbodenheizung
  • Stellplatz Tiefgaragen-Stellplatz
  • Keller voll unterkellert
  • Befeuerung Luftwärmepumpe
  • Bad Dusche

Objektbeschreibung

Moderne Eigentumswohnung in Alfter-Witterschlick, naturnah & stadtnah – KfW- Effizienzhaus 40 mit einem hohen Anteil erneuerbarer Energien.

In idyllischer Lage von Alfter-Witterschlick, nur wenige Minuten von Bonn entfernt, steht Ihr neues Zuhause:

Eine zeitgemäße Eigentumswohnung (Baujahr 2024), die höchste Ansprüche an Wohnkomfort, Nachhaltigkeit und Energieeffizienz erfüllt.

Dank der Bauweise nach dem Standard KfW-Effizienzhaus 40 EE profitieren Sie von niedrigen Energiekosten, staatlicher Förderfähigkeit und einem zukunftssicheren Zuhause.

Ihre neue Wohnung im Überblick

Wohnfläche: ca.62,25  m2
Zimmer: 2 (ideal für Singles, Paare oder kleine Familien)
Balkon: großzügig
Bauweise: Massivbau (Stahlbeton/Mauerwerk) – langlebig & wertstabi

Die offene Raumgestaltung, große Fensterflächen und lichtdurchflutete Räume schaffen ein freundliches und modernes Wohnambiente.

Lage – Wohnen im Grünen, nah an der Stadt

Witterschlick verbindet ländliche Idylle mit perfekter Anbindung:

Bonn erreichen Sie in wenigen Minuten Geschäfte des täglichen Bedarfs in direkter Nähe Kindergärten & Schulen vor Ort

Ein Wohnort, der Natur und Urbanität auf ideale Weise verbindet.

Nur noch wenige Wohnungen frei!

Wählen Sie zwischen 2-, 3- oder 4-Zimmer-Wohnungen in einem modernen Wohnensemble.

Jetzt Besichtigungstermin vereinbaren und Ihr neues Zuhause sichern!

Ausstattung

  • KfW-Effizienzhaus 40 EE – nachhaltig, energieeffizient & zukunftsorientiert
  • Fußbodenheizung mit Einzelraumsteuerung – behagliches Wohnklima
  • Stiebel Eltron Wärmepumpe – moderne Heiztechnik mit Fokus auf Effizienz
  • Kontrollierte Wohnraumlüftung – optimale Luftqualität, ideal für Allergiker
  • Elektrische Rollläden (Aluminium) & Isolierverglasung – Sicherheit, Ruhe & Komfort
  • Videogegensprechanlage + hochwertige Haustür – modernes Sicherheitskonzept
  • Aufzug (Thyssen-Krupp, rollstuhlgerecht) – barrierefreier Zugang
  • Kellerraum mit Steckdose + Fahrradstellplatz – praktische Extras Tiefgaragenstellplatz – sicher & wettergeschützt

Kontakt