
Moderne Eigentumswohnung mit Garten in Alfter-Witterschlick, naturnah & stadtnah
53347 Alfter- Witterschlick
- Kaufpreis 399000 €
- Courtage Provisionsfrei für den Käufer
- Energiebedarf 11 kWh pro m² pro Jahr
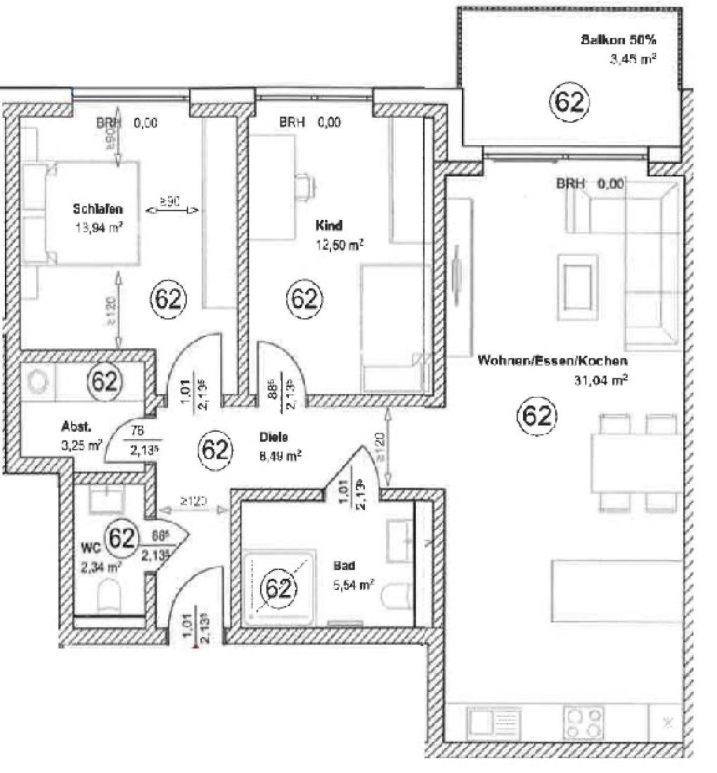
- Wohnfläche m² 82
- Zimmer 3
- Anzahl Badezimmer 1
- Heizungsart Fußbodenheizung
- Stellplatz Tiefgaragen-Stellplatz
- Keller voll unterkellert
- Befeuerung Luftwärmepumpe
- Bad Dusche
Objektbeschreibung
Moderne Eigentumswohnung in Alfter-Witterschlick, naturnah & stadtnah – KfW-Effizienzhaus 40 mit einem hohen Anteil erneuerbarer Energien.
In idyllischer Lage von Alfter-Witterschlick, nur wenige Minuten von Bonn entfernt, steht Ihr neues Zuhause:
Eine zeitgemäße Eigentumswohnung (Baujahr 2024), die höchste Ansprüche an Wohnkomfort, Nachhaltigkeit und Energieeffizienz erfüllt.
Dank der Bauweise nach dem Standard KfW-Effizienzhaus 40 EE profitieren Sie von niedrigen Energiekosten, staatlicher Förderfähigkeit und einem zukunftssicheren Zuhause.
Ihre neue Wohnung im Überblick
- Wohnfläche: ca 81,45 m²
- Zimmer: 3 (ideal für Singles, Paare oder kleine Familien)
- Balkon: großzügig
- Bauweise: Massivbau (Stahlbeton/Mauerwerk) – langlebig & wertstabi
Die offene Raumgestaltung, große Fensterflächen und lichtdurchflutete Räume schaffen ein freundliches und modernes Wohnambiente.
Lage – Wohnen im Grünen, nah an der Stadt
Witterschlick verbindet ländliche Idylle mit perfekter Anbindung:
- Bonn erreichen Sie in wenigen Minuten
- Geschäfte des täglichen Bedarfs in direkter Nähe
- Kindergärten & Schulen vor Ort
Ein Wohnort, der Natur und Urbanität auf ideale Weise verbindet.
Verfügbarkeit
Nur noch wenige Wohnungen frei!
Wählen Sie zwischen 2-, 3- oder 4-Zimmer-Wohnungen in einem modernen Wohnensemble.
Jetzt Besichtigungstermin vereinbaren und Ihr neues Zuhause sichern!
Ausstattung
Ausstattungs-Highlights
- KfW-Effizienzhaus 40 EE – nachhaltig, energieeffizient & zukunftsorientiert
- Fußbodenheizung mit Einzelraumsteuerung – behagliches Wohnklima
- Stiebel Eltron Wärmepumpe – moderne Heiztechnik mit Fokus auf Effizienz
- Kontrollierte Wohnraumlüftung – optimale Luftqualität, ideal für Allergiker
- Elektrische Rollläden (Aluminium) & Isolierverglasung – Sicherheit, Ruhe & Komfort
- Videogegensprechanlage + hochwertige Haustür – modernes Sicherheitskonzept
- Aufzug (Thyssen-Krupp, rollstuhlgerecht) – barrierefreier Zugang
- Kellerraum mit Steckdose + Fahrradstellplatz – praktische Extras
- Tiefgaragenstellplatz – sicher & wettergeschützt